Lancieux (22770) À Vendre - Bien Rare à Lancieux

AIS / LANCIEUX: UNIQUEMENT CHEZ NOUS !

Découvrez cet appartement exceptionnel, idéalement situé à seulement 200 mètres des plages et à proximité immédiate des commerces de Lancieux.

Vue mer imprenable depuis la pièce de vie et la cuisine.

Il dispose en rez-de-chaussée d'une grande entrée accueillante d'une pièce de vie spacieuse, lumineuse et ouverte.

Deux chambres, dont une avec salle d'eau privative, une salle de bain/wc.

Petite terrasse privative orientée Ouest pour profiter des couchers de soleil

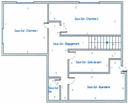
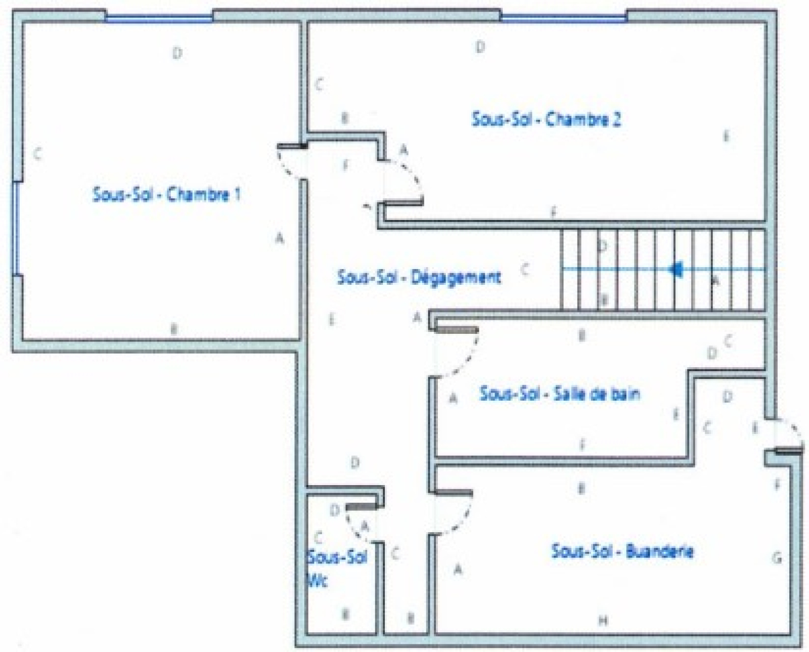
En souplex deux autres chambres une salle d'eau, un WC indépendant. Lingerie pratique

Une cave et place de parking

Un emplacement idéal

Ce bien unique vous permet de tout faire à pied en seulement 2 minutes : plages, commerces, loisirs.

Ne passez pas à côté de cette opportunité rare.

Contactez-nous dès maintenant pour plus d'informations ou organiser une visite.


Les informations sur les risques auxquels ce bien est exposé sont disponibles sur le site Géorisques

Les caractéristiques Du bien

Code postal 22770
Surface habitable (m²) 145 m²
Surface loi Carrez (m²) 145,28 m²
Nombre de chambre(s) 4
Nombre de pièces 6
Nombre de niveaux 2
Vue Mer
Nb de salle de bains 1
Nb de salle d'eau 2
Cuisine Américaine
Type de cuisine SEMI-EQUIPEE
Mode de chauffage Electrique
Type de chauffage Convecteur
Format de chauffage Individuel
Terrasse OUI
Cave OUI
Nombre de parking 1
Exposition Ouest
Année de construction 1920
Copropriété OUI
Lot n° 11
nombre de lots 18
Quote Part annuelle des charges 1 020 €
plan de sauvegarde NON
statut du syndic pas de procédure en cours

Les infos Financières

Prix de vente honoraires TTC inclus 499 900 €
Prix de vente honoraires TTC exclus 480 700 €
Honoraires TTC à la charge acquéreur 3.99 %

Les infos Energetiques

DPE GES

Montant estimé des dépenses annuelles d'énergie de ce logement pour un usage standard est compris entre 2 610 € et 3 580 € . 2021 étant l'année de référence des prix de l'énergie utilisés pour établir cette estimation.

Nos outils

Imprimer

Localisation Du bien

  • Commerces et santé
  • Loisirs
  • Ecoles
  • Transports
  • Pratique
Intéressé(e) par Ce bien ?

* Champ obligatoire

contacter l'agence
Les informations recueillies sur ce formulaire sont enregistrées dans un fichier informatisé par La Boite Immo agissant comme Sous-traitant du traitement pour la gestion de la clientèle/prospects de l'Agence / du Réseau qui reste Responsable du Traitement de vos Données personnelles. La base légale du traitement repose sur l'intérêt légitime de l'Agence / du Réseau. Elles sont conservées jusqu'à demande de suppression et sont destinées à l'Agence / au Réseau. Conformément à la loi « informatique et libertés », vous disposez des droits d’accès, de rectification, d’effacement, d’opposition, de limitation et de portabilité de vos données. Vous pouvez retirer votre consentement à tout moment en contactant directement l’Agence / Le Réseau. Consultez le site https://cnil.fr/fr pour plus d’informations sur vos droits. Si vous estimez, après avoir contacté l'Agence / le Réseau, que vos droits « Informatique et Libertés » ne sont pas respectés, vous pouvez adresser une réclamation à la CNIL. Nous vous informons de l’existence de la liste d'opposition au démarchage téléphonique « Bloctel », sur laquelle vous pouvez vous inscrire ici : https://www.bloctel.gouv.fr Dans le cadre de la protection des Données personnelles, nous vous invitons à ne pas inscrire de Données sensibles dans le champ de saisie libre.
Ce site est protégé par reCAPTCHA, les Politiques de Confidentialité et les Conditions d'Utilisation de Google s'appliquent.
Ces biens peuvent aussi vous intéresser
Beaussais-sur-Mer - Ploubalay (22650)

Maison Néo-Bretonne de 35 m² avec garage sur 780 m² de terrain clos

Saint-Cast-le-Guildo (22380)

SAINT CAST LE GUILDO - Charmante maison familiale

Nous suivre sur