Saint-Briac-sur-Mer (35800) Maison à Saint Briac

AIS/LANCIEUX vous propose à Saint-Briac-sur-Mer un beau projet immobilier et une opportiné A SAISIR avec cette maison située à 1,5 km de la Plage de la Salinette et environ 1km de l'hyper centre et ses commerces.

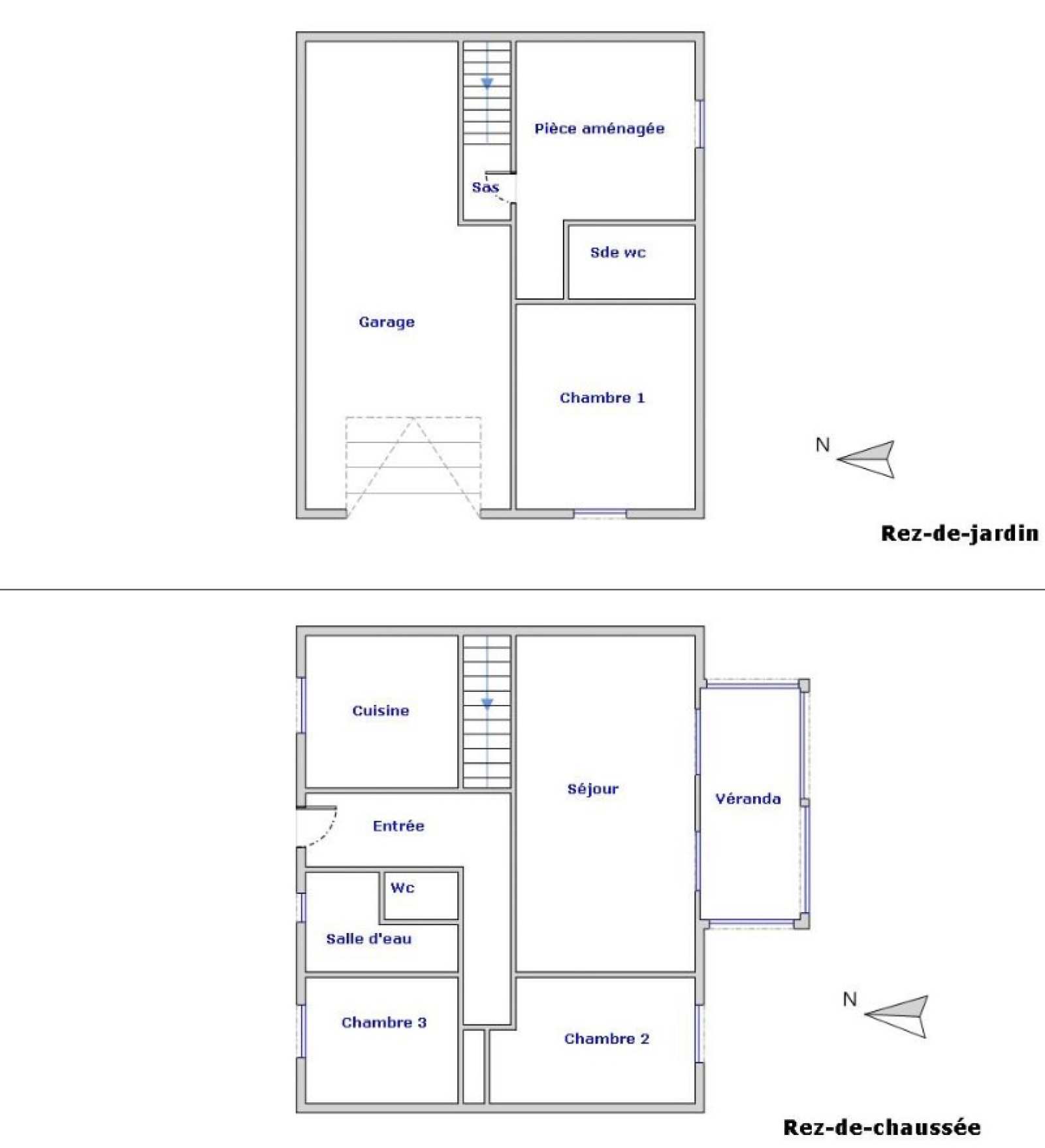
Dans ce quartier calme et résidentiel sur un peu plus de 570m² de parcelle maison d'habitation offrant un beau potentiel avec une entrée, cuisine indépendante, salon/séjour avec cheminée et véranda d'environ 35m² au SUD, deux belles chambres, salle d'eau et WC.

En rez de jardin, grand garage, bureau et chambre avec salle d'eau/WC.

Emplacement de qualité ! Moins de 3 500€/m² ! Vous n'avez plus qu'à vous projeter. Les, photos 1, 2 et 3 sont génrées par l'IA


Les informations sur les risques auxquels ce bien est exposé sont disponibles sur le site Géorisques

Les caractéristiques Du bien

Code postal 35800
Surface habitable (m²) 114 m²
surface terrain 577 m²
Surface loi Carrez (m²) 114 m²
Nombre de chambre(s) 3
Nombre de pièces 5
Nombre de niveaux 2
Nb de salle d'eau 2
Cuisine Séparée
Type de cuisine SEMI-EQUIPEE
Mode de chauffage Electrique
Type de chauffage Convecteur
Format de chauffage Individuel
Nombre de garage 1
Exposition Nord-Sud
Année de construction 1982
Copropriété NON

Les infos Financières

Prix de vente honoraires TTC inclus 396 900 €
Prix de vente honoraires TTC exclus 380 000 €
Honoraires TTC à la charge acquéreur 4,45 %

Les infos Energetiques

DPE GES

Montant estimé des dépenses annuelles d'énergie pour un usage standard est compris entre 2 870 € et 3 950 € . Prix moyens des énergies indexés sur les années 2021, 2022 et 2023 (abonnements compris).

Nos outils

Imprimer

Localisation Du bien

  • Commerces et santé
  • Loisirs
  • Ecoles
  • Transports
  • Pratique
Intéressé(e) par Ce bien ?

* Champ obligatoire

contacter l'agence
Les informations recueillies sur ce formulaire sont enregistrées dans un fichier informatisé par La Boite Immo agissant comme Sous-traitant du traitement pour la gestion de la clientèle/prospects de l'Agence / du Réseau qui reste Responsable du Traitement de vos Données personnelles. La base légale du traitement repose sur l'intérêt légitime de l'Agence / du Réseau. Elles sont conservées jusqu'à demande de suppression et sont destinées à l'Agence / au Réseau. Conformément à la loi « informatique et libertés », vous disposez des droits d’accès, de rectification, d’effacement, d’opposition, de limitation et de portabilité de vos données. Vous pouvez retirer votre consentement à tout moment en contactant directement l’Agence / Le Réseau. Consultez le site https://cnil.fr/fr pour plus d’informations sur vos droits. Si vous estimez, après avoir contacté l'Agence / le Réseau, que vos droits « Informatique et Libertés » ne sont pas respectés, vous pouvez adresser une réclamation à la CNIL. Nous vous informons de l’existence de la liste d'opposition au démarchage téléphonique « Bloctel », sur laquelle vous pouvez vous inscrire ici : https://www.bloctel.gouv.fr Dans le cadre de la protection des Données personnelles, nous vous invitons à ne pas inscrire de Données sensibles dans le champ de saisie libre.
Ce site est protégé par reCAPTCHA, les Politiques de Confidentialité et les Conditions d'Utilisation de Google s'appliquent.
Ces biens peuvent aussi vous intéresser
Saint-Cast-le-Guildo (22380)

SAINT CAST LE GUILDO - Appartement avec deux chambres à 100m de la...

Languenan (22130)

À Vendre – Deux Longères en Pierre à Languenan (2230) – Proche...

Nous suivre sur