Réf : 778-1

Pleurtuit (35730) Appartement Proche commerces Pleurtuit

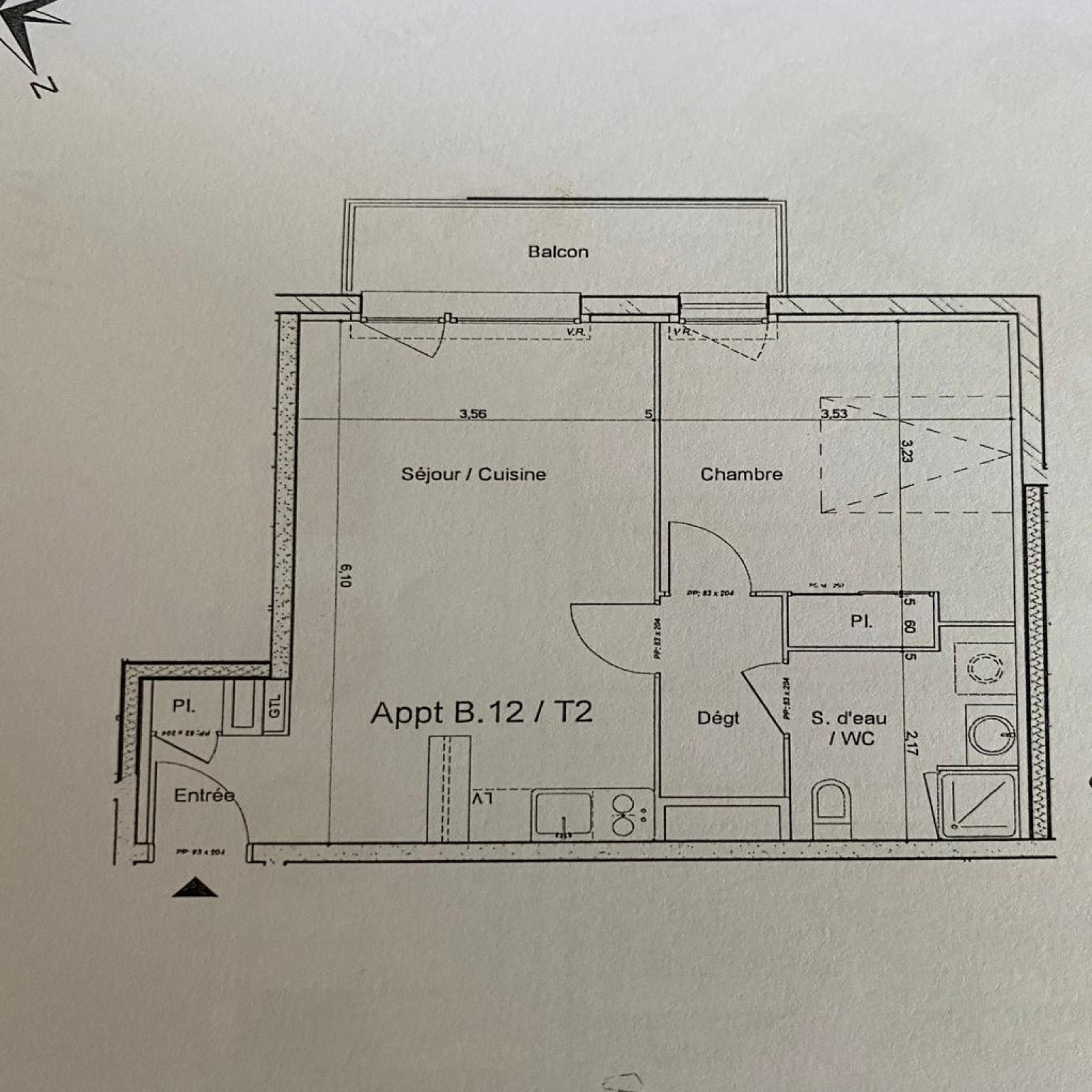
L'agence AIS vous propose à la vente, cet appartement situé à Pleurtuit à proximité des commodités, de type T2 d'une surface d'environ de 44m² .

Une piéce de vie avec cuisine, une chambre, une salle de bains avec WC.

Un balcon exposé Sud. Une place de parking.

Appartement vendu Loué


Les informations sur les risques auxquels ce bien est exposé sont disponibles sur le site Géorisques

Les caractéristiques Du bien

Code postal 35730
Surface habitable (m²) 44,24 m²
Surface loi Carrez (m²) 44,24 m²
Nombre de chambre(s) 1
Nombre de pièces 2
Etage 1
Ascenseur OUI
Nb de salle d'eau 1
Cuisine Américaine
Type de cuisine SEMI-EQUIPEE
Mode de chauffage Mixte, Autre
Type de chauffage Radiateur, Autre
Format de chauffage Collectif, Collectif
Interphone OUI
Balcon OUI
Cave NON
Nombre de parking 1
Exposition Sud
Année de construction 2010
Copropriété OUI
Lot n° 19
nombre de lots 67
Quote Part annuelle des charges 943,88 €
plan de sauvegarde NON
statut du syndic pas de procédure en cours
Découvrir le bien

Les infos Financières

Prix de vente honoraires TTC inclus 155 000 €
Prix de vente honoraires TTC exclus 148 000 €
Honoraires TTC à la charge acquéreur 4.73 %
Dépôt de garantie TTC 420 €
Charges 77,03 €
Taxe foncière annuelle 470 €

Les infos Energetiques

DPE GES

Montant estimé des dépenses annuelles d'énergie pour un usage standard est compris entre 340 € et 500 € . Prix moyens des énergies indexés sur les années 2021, 2022 et 2023 (abonnements compris).

Nos outils

Imprimer

Localisation Du bien

  • Commerces et santé
  • Loisirs
  • Ecoles
  • Transports
  • Pratique
Rez de chaussée
entrée 2.07 m²

Séjour / Cuisine 21.72 m²

chambre 12.53 m²

Salle d'eau + WC 5.07 m²

dégagement 2.85 m²

Intéressé(e) par Ce bien ?

* Champ obligatoire

contacter l'agence
Les informations recueillies sur ce formulaire sont enregistrées dans un fichier informatisé par La Boite Immo agissant comme Sous-traitant du traitement pour la gestion de la clientèle/prospects de l'Agence / du Réseau qui reste Responsable du Traitement de vos Données personnelles. La base légale du traitement repose sur l'intérêt légitime de l'Agence / du Réseau. Elles sont conservées jusqu'à demande de suppression et sont destinées à l'Agence / au Réseau. Conformément à la loi « informatique et libertés », vous disposez des droits d’accès, de rectification, d’effacement, d’opposition, de limitation et de portabilité de vos données. Vous pouvez retirer votre consentement à tout moment en contactant directement l’Agence / Le Réseau. Consultez le site https://cnil.fr/fr pour plus d’informations sur vos droits. Si vous estimez, après avoir contacté l'Agence / le Réseau, que vos droits « Informatique et Libertés » ne sont pas respectés, vous pouvez adresser une réclamation à la CNIL. Nous vous informons de l’existence de la liste d'opposition au démarchage téléphonique « Bloctel », sur laquelle vous pouvez vous inscrire ici : https://www.bloctel.gouv.fr Dans le cadre de la protection des Données personnelles, nous vous invitons à ne pas inscrire de Données sensibles dans le champ de saisie libre.
Ce site est protégé par reCAPTCHA, les Politiques de Confidentialité et les Conditions d'Utilisation de Google s'appliquent.
Ces biens peuvent aussi vous intéresser
Saint-Cast-le-Guildo (22380)

SAINT CAST LE GUILDO - Terrain constructible à proximité de la...

Nous suivre sur